Datos básicos
Descripción
-
Descripción:
Presentamos esta magnífica propiedad situada en la emblemática calle Don Ramón de la Cruz a 150m2 del Marqués de Salamanca.
Mostrar toda la descripción- 179 m² construidos
- 3 habitaciones
- 3 baños
- Terraza
- Segunda mano/buen estado
- Armarios empotrados
- Orientación oeste
- Construido en 1964
- Calefacción central: Gas
- Aire acondicionado
- Solo acceso exterior adaptado para personas con movilidad reducida
- IBI - 1420€
- Comunidad - 223€ incluido calefacción y agua
Edificio
- Planta 5ª exterior
- Con ascensor
v
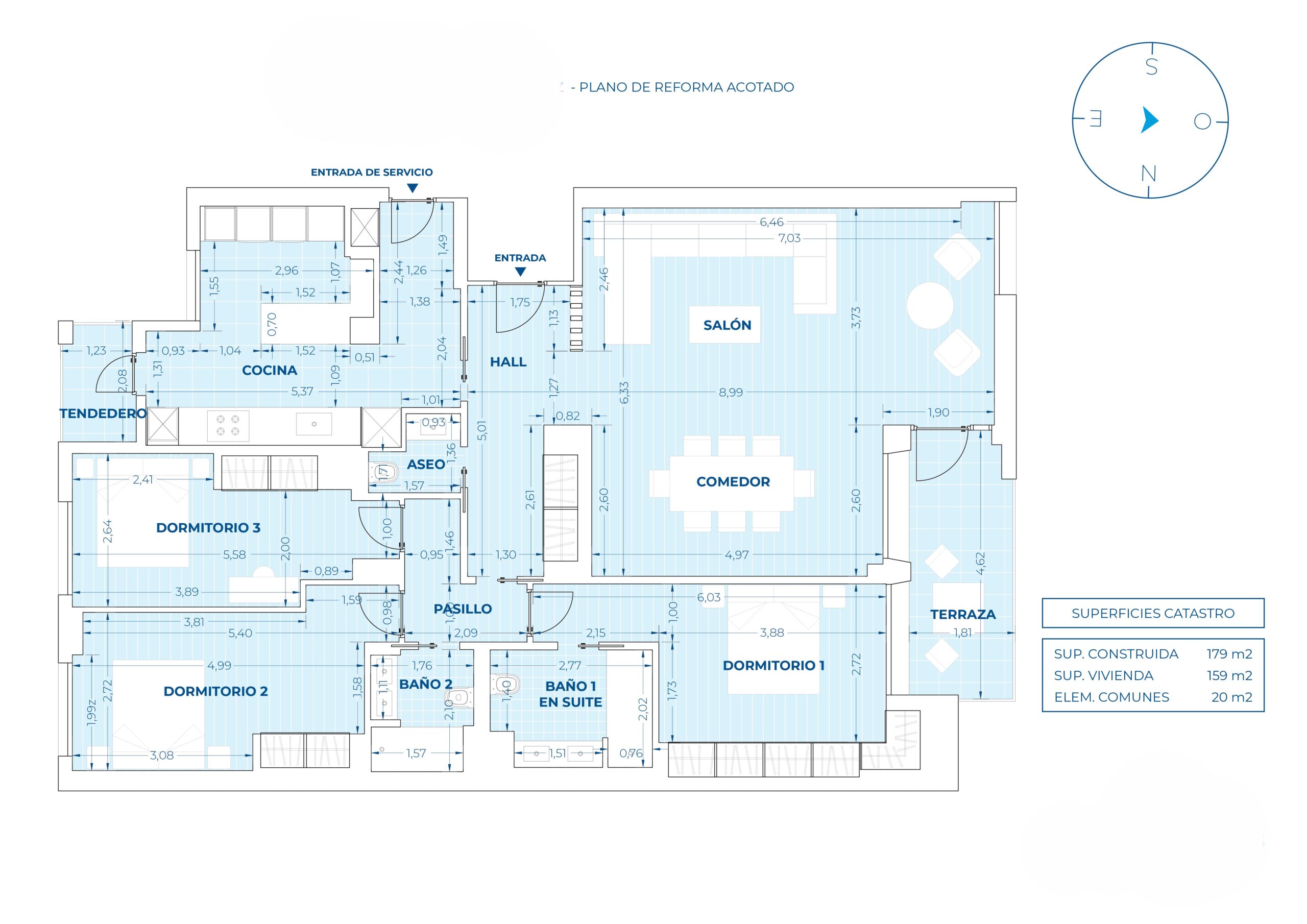
- Planos de planta :

Distribución y Detalles:
Zona Social: el corazón de la casa, con un salón-comedor de dimensiones extraordinarias. Un espacio versátil con capacidad real para una gran mesa de 8 comensales y una zona de descanso para sofás de gran formato (chaise longue). Desde aquí se accede a una amplia terraza privada el rincón perfecto para disfrutar del aire libre en pleno centro. En el pasillo recibidor tenemos un gran armario empotrado y un aseo de cortesía.
Cocina de Chef: Independiente y pensada para el día a día. Está completamente equipada con frigorífico Side by Side, torre de horno y microondas, lavavajillas integrado, vitrocerámica, lavadora y secadora, todo ello con la garantía que ofrece la marca Bosch. Tiene una capacidad de almacenaje sobresaliente (muebles altos, bajos y cajoneras). Además, cuenta con acceso a una práctica terraza-tendedero.
Zona de descanso: dispone de 3 dormitorios amplios. La suite principal es un refugio de privacidad con su propio baño incorporado. Las otras dos habitaciones comparten un segundo baño completo ubicado en el pasillo distribuidor, ideal para familia o invitados, con espejos retroiluminados.
Suelos de tarima de madera natural y alicatados Porcelanosa de gran formato en baños y cocina. Armarios empotrados lacados, forrados en su interior de lino, con baldas, cajones y barras para colgar.
Aire acondicionado en toda la viviendo por sistema airzone frío-calor, para regular la temperatura en cada una de las estancias individualmente, y calefacción central.
Características básicas